Giường ngủ kê đúng phong thủy không chỉ mang lại giấc ngủ sâu mà còn tích lũy năng lượng tích cực cho cả gia đình. Tại xưởng Đại Phát, chúng tôi thường tư vấn khách hàng về vị trí đặt giường trước khi giao hàng — vì một chiếc giường gỗ sồi 1m8 đặt sai hướng có thể ảnh hưởng đến chất lượng giấc ngủ dù chất liệu có cao cấp đến đâu.
Nguyên Tắc Vàng Khi Kê Giường Ngủ
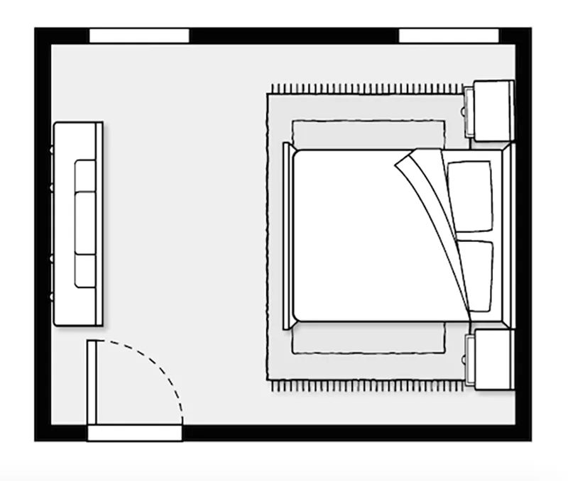
Đầu Giường Sát Tường — Tạo Điểm Tựa Vững Chắc
Đầu giường cần tựa vào tường thật, tạo thế “Huyền Vũ” trong phong thủy. Khoảng cách hai bên giường với tường nên từ 60-80cm để dễ di chuyển. Với phòng 12m², giường 1m6 (160×200cm) là lựa chọn tối ưu.
Theo phong thuỷ đầu giường cần kê sát tường
Đầu giường tựa tường giúp người ngủ cảm thấy an toàn, giảm lo âu
Đầu tường kê sát tường sẽ tạo nên chỗ dựa vững chắc cho gia chủ và mang lại cảm giác an toàn
Thực tế tại nhà khách hàng Đại Phát — giường gỗ óc chó 1m8 kê sát tường phòng 15m²
Không Gian Phía Trước Giường Cần Thoáng
Vùng “Chu Tước” (phía chân giường hướng ra) không nên có tủ cao, kệ lớn che tầm nhìn. Khoảng cách tối thiểu từ chân giường đến tường đối diện: 100cm. Điều này giúp không khí lưu thông, tránh cảm giác bí bách.
Phía đối diện đầu giường hướng ra phải đảm bảo sự thông thoáng
Sơ đồ bố trí giường với không gian thoáng phía trước
Không gian phía đối diện đầu giường hướng gia thông thoáng mang đến sự thoải mái cho người ngủ
Phòng ngủ 18m² với giường 1m8 — khoảng cách chân giường đến tủ quần áo 120cm
Lệch Hướng Cửa Phòng Và Cửa Sổ
Giường đặt vuông góc hoặc chéo 45° so với cửa chính giúp tránh luồng khí thẳng, tạo riêng tư. Nếu phòng nhỏ buộc phải đặt thẳng hướng cửa sổ, dùng rèm vải dày hoặc rèm cửa sổ chống nắng.
Giường ngủ nên được đặt lệch so với cửa sổ và cửa phòng
Bố trí giường lệch cửa trong phòng 10m²
Việc đặt lệch cửa phòng với giường ngủ tạo ra sự riêng tư nhất định cho không gian nghỉ ngơi
Giường gỗ công nghiệp melamine 1m6 đặt lệch cửa 60° — phòng chung cư 11m²
Cân Đối Hai Bên Giường
Khoảng cách từ mép giường đến tường hai bên nên bằng nhau (60-70cm mỗi bên). Đặt tab đầu giường hoặc tủ nhỏ đối xứng, mỗi bên một đèn ngủ — tượng trưng Thanh Long và Bạch Hổ hộ vệ.
| Kích thước phòng | Kích thước giường | Khoảng cách hai bên |
|---|---|---|
| 9-12m² | 1m2 (120×200cm) | 50-60cm |
| 12-16m² | 1m6 (160×200cm) | 60-70cm |
| 16m² trở lên | 1m8 (180×200cm) | 70-80cm |
Giường ngủ nên được bố trí sao cho cân đều hai bên
Sơ đồ bố trí cân đối với tab đầu giường và đèn ngủ
Kê giường ngủ cân đều hai bên làm cho không gian ngủ vừa có tính thẩm mỹ cao vừa đảm bảo sự tiện dụng
Phòng ngủ master 20m² — giường gỗ sồi 1m8 với hai tab đầu giường gỗ óc chó
Đầu Giường Vuông Góc Với Cửa
Cách bố trí này phù hợp người hay mất ngủ. Đầu giường vuông góc 90° với cửa vừa khuất tầm nhìn vừa tránh luồng khí trực tiếp, giúp thư giãn nhanh hơn.
Đầu giường kê vuông góc với cửa phòng
Phương án kê giường cho phòng hình chữ nhật
Cách kê đầu giường vuông góc với cửa ra vào phù hợp với những người hay bị mất ngủ
Giường 1m6 kê vuông góc cửa — phòng 13m² hình chữ nhật
Giường Cạnh Cửa Với Tủ Ngăn Cách
Phòng nhỏ dưới 10m² có thể đặt giường cạnh cửa, dùng tủ đầu giường cao 50-60cm làm vách ngăn. Khoảng cách giường-cửa tối thiểu 40cm.
Đầu giường đặt cạnh cửa ra vào, ngăn cách bởi tủ để đồ nhỏ
Giải pháp cho phòng 8-9m²
Cách đặt đầu giường cạnh cửa ra vào phù hợp với những căn phòng có diện tích hạn chế
Giường hộp kéo 1m2 với ngăn chứa đồ — tối ưu diện tích phòng trọ
Những Vị Trí Tuyệt Đối Tránh
Đối Diện Nhà Vệ Sinh
Nhà vệ sinh tích tụ ẩm khí, vi khuẩn. Giường đặt đối diện cửa WC ảnh hưởng hô hấp, da liễu. Nếu không thể thay đổi, trồng cây kim ngân hoặc trầu bà trước cửa WC, luôn đóng cửa kín.
Giường ngủ không được đặt đối diện cửa phòng nhà vệ sinh
Sơ đồ vị trí cần tránh
Đặt giường ngủ đối diện phòng vệ sinh ảnh hưởng đến giấc ngủ và sức khỏe của chủ nhân căn phòng
Hậu quả khi bố trí sai
Nên kê giường ngủ lệch với nhà vệ sinh
Giải pháp: kê lệch 90° và trồng cây thanh lọc không khí
Đầu Giường Sát Tường Nhà Vệ Sinh
Tường chung với WC truyền ẩm, mùi qua thạch cao hoặc gạch. Nếu bắt buộc, ốp thêm lớp cách âm cách nhiệt, đặt tủ đầu giường dày 40cm làm đệm.
Đầu giường ngủ không được đặt sát tường nhà vệ sinh
Vị trí cấm kỵ trong phong thủy
Việc đặt đầu giường sát tường nhà vệ sinh sẽ ảnh hưởng đến giấc ngủ gia chủ
Ảnh hưởng đến giấc ngủ và sức khỏe lâu dài
Đối Diện Gương Soi
Gương phản chiếu hình ảnh ban đêm gây giật mình, ác mộng. Nếu có gương cố định, quay mặt gương vào tường hoặc phủ vải tối màu khi ngủ. Vị trí tốt cho gương: đối diện cửa sổ có cây xanh, tranh phong cảnh.
Những vị trí nên đặt và không nên đặt gương soi trong mối tương quan với giường ngủ
Sơ đồ bố trí gương đúng và sai
Đặt giường ngủ đối diện gương soi tạo cảm giác bất an, lo lắng cho người ngủ
Gương đối diện giường gây mất ngủ, căng thẳng
Đầu Giường Chiếu Thẳng Bếp
Bếp chứa hỏa khí, mùi thức ăn, dầu mỡ. Đầu giường hướng bếp gây đau đầu, huyết áp không ổn định. Khoảng cách tối thiểu giường-bếp: 3m, có vách ngăn hoặc cửa đ
Ngày cập nhật 12 Tháng 3, 2026 by Trần Nhân

Trần Nhân là chuyên gia thiết kế nội thất tại noithatdaiphat.net với hơn 12 năm kinh nghiệm thực tiễn trong lĩnh vực thiết kế và thi công không gian sống cao cấp, bao gồm nhà ở, căn hộ, biệt thự, văn phòng và không gian thương mại.
