
Lavabo dương bàn (hay chậu rửa đặt bàn) không chỉ là một thiết bị vệ sinh cơ bản mà còn là điểm nhấn thẩm mỹ quan trọng trong không gian phòng tắm, phản ánh phong cách nội thất tinh tế của gia chủ. Với thiết kế nổi bật trên mặt bàn đá, lavabo dương bàn mang lại vẻ đẹp sang trọng và hiện đại. Để đảm bảo chiếc chậu rửa này hoạt động hiệu quả và bền bỉ, việc nắm vững cách lắp đặt lavabo dương bàn đúng kỹ thuật là điều vô cùng cần thiết. Bài viết này, dựa trên kinh nghiệm chuyên môn, sẽ cung cấp quy trình kỹ thuật chi tiết nhất, từ việc xác định kích thước tiêu chuẩn đến bí quyết chống rò rỉ hiệu quả.

Lavabo Dương Bàn: Tuyệt Tác Thiết Kế Cho Phòng Tắm Cao Cấp
Lavabo dương bàn là loại chậu rửa được đặt hoàn toàn nổi trên bề mặt của bàn đá, tạo nên sự khác biệt rõ rệt so với lavabo âm bàn truyền thống. Sự lựa chọn này thường gắn liền với xu hướng thiết kế nội thất cao cấp, nơi mà chậu rửa không chỉ là vật dụng mà còn là một tác phẩm nghệ thuật.
Thẩm Mỹ Và Chất Liệu Đa Dạng
Điểm mạnh lớn nhất của lavabo dương bàn chính là tính thẩm mỹ vượt trội.
- Vật liệu cao cấp: Chúng được chế tác từ nhiều vật liệu khác nhau như sứ vệ sinh cao cấp, đá tự nhiên (marble, granite), đá nhân tạo hoặc thậm chí là kính cường lực, cho phép gia chủ cá nhân hóa không gian.
- Kiểu dáng độc đáo: Thiết kế đa dạng từ hình tròn, vuông, chữ nhật cổ điển đến các hình dáng bất đối xứng, phá cách, giúp chiếc chậu rửa dễ dàng chinh phục khách hàng khó tính.
- Nổi bật: Do được đặt nổi, toàn bộ kiểu dáng và đường nét tinh xảo của chậu rửa sẽ được phô bày hoàn toàn, trở thành tiêu điểm thị giác trong phòng tắm.
Phân Loại Thiết Kế Lavabo Dương Bàn
Để tối ưu hóa không gian và công năng sử dụng, chậu rửa đặt bàn được chia thành các loại thiết kế chính:
- Chậu đơn: Loại phổ biến nhất, đặt độc lập trên mặt bàn đá. Thích hợp cho mọi không gian, đặc biệt là phòng tắm nhỏ và vừa.
- Chậu liền bàn: Chậu rửa và mặt bàn được đúc liền khối từ một vật liệu, thường là sứ hoặc đá nhân tạo. Điều này tạo nên sự đồng nhất, liền mạch và rất dễ dàng vệ sinh.
- Chậu liền tủ (Cabinet Lavabo): Chậu đặt nổi trên một hệ tủ đựng đồ (vanity cabinet). Sự kết hợp này không chỉ tăng tính thẩm mỹ mà còn tối đa hóa không gian lưu trữ bên dưới, mang lại sự tiện nghi cho người dùng.
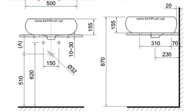
Tiêu Chuẩn Kích Thước Lắp Đặt Lavabo Dương Bàn Chuyên Nghiệp
Việc xác định kích thước lắp đặt chuẩn là bước then chốt, quyết định sự thoải mái và thuận tiện khi sử dụng. Một chiếc chậu được đặt ở độ cao lý tưởng sẽ tránh được tình trạng khom lưng quá mức hoặc nước bắn ra ngoài.
Chiều Cao Lắp Đặt Lavabo Tiêu Chuẩn
Chiều cao lắp đặt lavabo được tính từ sàn nhà hoàn thiện lên đến mép trên của chậu rửa:
- Đối với người Việt Nam trưởng thành: Chiều cao tiêu chuẩn dao động từ 80cm đến 85cm. Đây là mức phổ biến nhất, phù hợp với vóc dáng trung bình.
- Đối với người có chiều cao vượt trội (trên 1.75m): Có thể nâng cao lên từ 85cm đến 90cm để tăng sự thoải mái khi sử dụng.
- Đối với trẻ em hoặc khu vực riêng: Chiều cao có thể điều chỉnh thấp hơn, khoảng 50cm đến 60cm.
Chiều cao tiêu chuẩn không chỉ phụ thuộc vào chiều cao chậu mà còn phụ thuộc vào chiều cao của mặt bàn đặt chậu.
Kích Thước Ống Chờ Kỹ Thuật
Để đảm bảo quy trình lắp đặt lavabo diễn ra suôn sẻ và đúng quy trình kỹ thuật, các đường ống chờ phải được đặt chính xác ngay từ giai đoạn xây thô:
- Chiều cao Ống Xả (Thoát nước): Tính từ sàn nhà hoàn thiện đến tim lỗ co (d=34mm hoặc d=42mm) nên là 50cm đến 55cm. Chiều cao này giúp lắp đặt siphon (bộ xả chữ P) một cách gọn gàng và đảm bảo độ dốc thoát nước tối ưu.
- Chiều cao Ống Cấp Nước Nóng/Lạnh: Tính từ sàn nhà hoàn thiện đến tim lỗ co đồng (d=21mm) nên là 60cm đến 65cm. Vị trí này thường nằm phía trên ống xả và được căn chỉnh để vòi nước có thể dễ dàng kết nối.
Việc tuân thủ nghiêm ngặt các thông số kích thước này sẽ giảm thiểu rủi ro phải đục phá hoặc điều chỉnh sau này.
Hướng Dẫn Chi Tiết Cách Lắp Đặt Lavabo Dương Bàn Đúng Kỹ Thuật
Quá trình lắp đặt lavabo dương bàn tuy đơn giản hơn lavabo âm bàn nhưng đòi hỏi sự tỉ mỉ và chính xác cao ở từng bước để đảm bảo tính thẩm mỹ và ngăn ngừa hiện tượng rò rỉ.
1. Chuẩn Bị Dụng Cụ Và Vật Tư Cần Thiết
Việc chuẩn bị đầy đủ giúp công việc diễn ra liên tục, chuyên nghiệp:
- Dụng cụ: Máy khoan (khoan bê tông và khoan kính/đá), mũi khoan chuyên dụng (mũi khoét lỗ cho vòi và lỗ thoát), thước dây, bút lông, tua vít, kìm, cờ lê.
- Vật tư: Chậu rửa, bộ xả (siphon, rốn xả), vòi nước, dây cấp mềm, keo silicon chống thấm (nên chọn loại kháng nấm mốc chuyên dùng cho phòng tắm), băng tan (cao su non).
2. Xác Định Vị Trí Và Lấy Dấu Khuôn Chậu
Đặt chậu rửa vào vị trí dự kiến trên mặt bàn đá. Dùng thước và bút lông để kẻ theo khuôn chậu, đánh dấu chính xác vị trí tâm của lỗ thoát nước và tâm lỗ vòi (nếu vòi được lắp trên mặt bàn).
Nếu chậu có kèm theo bản vẽ kỹ thuật hoặc mẫu giấy, hãy đặt mẫu đó lên mặt bàn và vẽ theo khuôn. Công đoạn này yêu cầu sự tỉ mỉ tối đa để tránh khoét lệch.
3. Khoan Và Khoét Lỗ Trên Mặt Bàn Đá
Sử dụng máy khoan với mũi khoét chuyên dụng để tạo các lỗ cần thiết:
- Lỗ Thoát Nước (Lỗ Xả): Khoét một lỗ tròn có đường kính phù hợp với rốn xả (thông thường khoảng 40mm đến 50mm). Đảm bảo lỗ phải trùng khớp tuyệt đối với tâm lỗ đã đánh dấu ở Bước 2.
- Lỗ Vòi Nước (Nếu Vòi Gắn Bàn): Khoét thêm một lỗ nếu vòi nước được lắp trực tiếp lên mặt bàn. Lỗ này thường có đường kính khoảng 32mm đến 35mm.
Quá trình khoét lỗ cần thực hiện cẩn thận, đặc biệt với mặt đá, để tránh làm nứt hoặc vỡ mép đá.
4. Lắp Đặt Vòi Nước Và Rốn Xả
Trước khi đặt chậu lên bàn, hãy lắp đặt rốn xả (drain) và vòi nước (nếu là vòi gắn trên bàn) vào các vị trí đã khoét.
- Lắp Vòi: Luồn dây cấp nước và chân vòi qua lỗ đã khoét. Dùng các đai ốc siết chặt vòi vào mặt bàn từ phía dưới. Chú ý đặt vòng đệm cao su để đảm bảo độ kín nước.
- Lắp Rốn Xả: Đặt vòng đệm cao su lên rốn xả, luồn rốn xả qua lỗ thoát của chậu và siết chặt đai ốc từ phía dưới. Sử dụng một lớp keo silicon mỏng ở mặt tiếp xúc để tăng độ kín.
5. Cố Định Lavabo Dương Bàn Lên Mặt Đá
Đây là bước quan trọng nhất trong cách lắp đặt lavabo dương bàn để đảm bảo tính ổn định và chống thấm.
- Trét Keo Silicon: Dùng súng bắn keo silicon chuyên dụng (chống nấm mốc, chống nước) trét một lớp mỏng, đều và liên tục xung quanh chu vi đáy chậu (phần sẽ tiếp xúc với mặt bàn).
- Đặt Chậu: Nhẹ nhàng đặt chậu vào vị trí đã lấy dấu. Nhấn nhẹ và căn chỉnh chậu sao cho hoàn toàn song song với tường và các mép bàn.
- Siết Chặt: Không cần siết quá chặt vì chậu đã được cố định bằng keo. Keo silicon sẽ tạo độ bám dính chắc chắn và là lớp đệm chống sốc hiệu quả.
6. Kết Nối Ống Cấp Và Ống Thoát Nước
Sau khi chậu đã được cố định, tiến hành kết nối các đường ống:
- Kết Nối Dây Cấp: Dùng băng tan quấn quanh ren của co đồng chờ trên tường, sau đó kết nối dây cấp mềm từ vòi nước vào co đồng. Siết chặt bằng cờ lê nhưng tránh làm hỏng ren.
- Lắp Đặt Siphon: Kết nối siphon (bộ xả chữ P hoặc chữ U) vào rốn xả của chậu và vào lỗ thoát nước chờ trên tường. Đảm bảo các gioăng cao su được lắp đúng vị trí và siết ốc vừa đủ để ngăn rò rỉ.
7. Hoàn Thiện Và Kiểm Tra Chống Rò Rỉ
- Trám Khe Hở: Dùng keo silicon trám lại các khe hở còn sót lại, đặc biệt là phần chân chậu tiếp xúc với mặt bàn và các khe hở khác. Dùng tay hoặc dụng cụ làm phẳng lớp keo để đạt tính thẩm mỹ cao nhất.
- Kiểm Tra Thử Nước: Mở van cấp nước và kiểm tra toàn bộ hệ thống vòi, dây cấp và bộ xả. Quan sát kỹ lưỡng trong vài phút xem có hiện tượng rò rỉ nước ở bất kỳ mối nối nào không. Nếu có, cần siết chặt lại hoặc tháo ra quấn thêm băng tan.
Những Lưu Ý Quan Trọng Khi Lắp Đặt Và Bảo Trì Lavabo
Để chiếc lavabo dương bàn của bạn bền đẹp và duy trì được vẻ sang trọng theo thời gian, cần chú ý một số yếu tố kỹ thuật và bảo dưỡng.
Tuyệt Chiêu Chống Rò Rỉ Tuyệt Đối
Rò rỉ là vấn đề phổ biến nhất sau khi lắp đặt lavabo. Tuyệt chiêu nằm ở việc kiểm soát vật liệu và kỹ thuật siết:
- Sử Dụng Keo Silicon Cao Cấp: Keo phải là loại kháng nấm mốc, chống nước 100% (chuyên dùng cho nhà tắm). Keo chất lượng thấp sẽ nhanh chóng bị mốc đen và giảm độ bám dính.
- Lớp Keo Đệm Đáy Chậu: Lớp keo này không chỉ cố định mà còn là lớp đệm chống thấm quan trọng nhất giữa chậu và mặt bàn. Đảm bảo trét đều và liên tục.
- Băng Tan và Gioăng Cao Su: Không bao giờ thiếu băng tan (cao su non) khi siết các mối nối ren. Luôn đảm bảo gioăng cao su (roăng đệm) nằm đúng vị trí trong các khớp nối của siphon.
Lưu Ý Thiết Kế Và Vật Liệu Mặt Bàn
Lavabo dương bàn yêu cầu mặt bàn phải có độ cứng cáp và khả năng chịu nước cao.
- Độ Dày Mặt Bàn: Mặt bàn đá hoặc gỗ công nghiệp chống ẩm (phủ laminate/acrylic) phải đủ dày (tối thiểu 2cm) để chịu được trọng lượng của chậu, nước và lực tác động trong quá trình sử dụng.
- Không Gian Phối Hợp: Khi lắp đặt lavabo dương bàn, cần cân nhắc chiều sâu của mặt bàn. Chậu thường chiếm khoảng 40-50cm, mặt bàn cần có độ sâu tương ứng để tránh cảm giác chậu bị trồi ra ngoài quá nhiều.
Bảo Trì Và Vệ Sinh Hàng Ngày
Chăm sóc lavabo dương bàn đúng cách giúp duy trì độ sáng bóng và ngăn ngừa ố vàng, nấm mốc.
- Vệ Sinh Định Kỳ: Sử dụng các dung dịch vệ sinh trung tính, tránh dùng chất tẩy rửa có tính axit mạnh vì chúng có thể làm hỏng bề mặt sứ, đá hoặc lớp keo silicon.
- Làm Sạch Siphon: Định kỳ tháo siphon để loại bỏ tóc, cặn xà phòng tích tụ, giúp đảm bảo tốc độ thoát nước và ngăn mùi hôi quay ngược lên.
Lavabo dương bàn là lựa chọn hoàn hảo cho không gian nội thất mong muốn sự tinh tế và đẳng cấp. Việc hiểu rõ từ việc lựa chọn vật liệu cao cấp đến việc thực hiện chính xác cách lắp đặt lavabo dương bàn sẽ giúp bạn có được một thiết bị vệ sinh hoạt động hoàn hảo. Nếu bạn đang tìm kiếm các dòng sản phẩm đồ gỗ nội thất cao cấp như salon gỗ, bàn ghế, tủ, giường hoặc các sản phẩm nội thất khác để tạo nên sự đồng bộ cho không gian sống, bao gồm cả phòng tắm, hãy liên hệ ngay với Nội Thất ĐẠI PHÁT. Chúng tôi cam kết mang đến những sản phẩm hoàn thiện vượt trội, giúp bạn kiến tạo nên ngôi nhà bền đẹp và sang trọng.
Ngày cập nhật 26 Tháng 12, 2025 by Trần Nhân

Trần Nhân là chuyên gia thiết kế nội thất tại noithatdaiphat.net với hơn 12 năm kinh nghiệm thực tiễn trong lĩnh vực thiết kế và thi công không gian sống cao cấp, bao gồm nhà ở, căn hộ, biệt thự, văn phòng và không gian thương mại.
