Skip to content
NỘI THẤT ĐẠI PHÁTNỘI THẤT ĐẠI PHÁT
  • Trang chủ
  • Giới thiệu
  • Tư vấn thiết kế
  • Bàn ghế
  • Liên hệ

Bản Vẽ Tủ Quần Áo: Hướng Dẫn Chọn Thiết Kế Phù Hợp Cho Phòng Ngủ 2026

tủ quầnPosted on 13 Tháng 3, 2026 by Trần Nhân

Trang chủ » Bản Vẽ Tủ Quần Áo: Hướng Dẫn Chọn Thiết Kế Phù Hợp Cho Phòng Ngủ 2026

Đang tìm kiếm bản vẽ tủ quần áo phù hợp cho không gian sống? Bài viết này sẽ giúp bạn hiểu rõ cách đọc bản vẽ kỹ thuật, chọn kích thước chuẩn và lựa chọn chất liệu phù hợp với nhu cầu thực tế.

Nội dung

  1. Bản vẽ kỹ thuật tủ quần áo và vai trò trong thi công
  2. Chọn loại tủ theo diện tích phòng ngủ
    1. Phòng 10-12m²: Tủ 2 cánh (rộng 100-120cm)
    2. Phòng 15-18m²: Tủ 3 cánh (rộng 150-180cm)
    3. Phòng >20m²: Tủ 4-5 cánh hoặc tủ chữ L
  3. So sánh loại cửa: Mở vs Lùa
  4. Chất liệu gỗ: Chọn theo ngân sách
    1. Gỗ tự nhiên (sồi, xoan đào)
    2. Gỗ công nghiệp (MDF phủ melamine, MFC)
  5. Bố trí ngăn chia thông minh
  6. Tủ kịch trần: Tận dụng chiều cao phòng
  7. Tủ góc chữ L: Giải pháp cho góc chết
  8. Checklist chọn bản vẽ tủ quần áo

Bản vẽ kỹ thuật tủ quần áo và vai trò trong thi công

Bản vẽ kỹ thuật là tài liệu thể hiện đầy đủ kích thước tổng thể, cấu trúc ngăn chia và chi tiết lắp ráp của tủ. Tại xưởng Đại Phát, mỗi bản vẽ đều ghi rõ chiều rộng × sâu × cao (đơn vị cm), giúp thợ mộc cắt gỗ chính xác và khách hàng dự toán chi phí trước khi thi công.

Bản vẽ tủ quần áo là tài liệu quan trọng và cần thiết khi lắp đặt tủ quần áoBản vẽ tủ quần áo là tài liệu quan trọng và cần thiết khi lắp đặt tủ quần áo

Bản vẽ kỹ thuật giúp hình dung rõ cấu trúc tủ trước khi thi công

Lợi ích cụ thể:

  • Kiểm soát nguyên vật liệu, tránh lãng phí gỗ
  • Phối hợp hiệu quả giữa chủ nhà và đội thi công
  • Tối ưu không gian theo diện tích phòng thực tế

Chọn loại tủ theo diện tích phòng ngủ

Phòng 10-12m²: Tủ 2 cánh (rộng 100-120cm)

Tủ 2 cánh phù hợp phòng ngủ nhỏ, cặp đôi mới cưới hoặc phòng trẻ em. Kích thước chuẩn: 100×55×200cm (rộng × sâu × cao). Chừa lối đi tối thiểu 70cm phía trước tủ để mở cánh thoải mái.

Mẫu bản vẽ chi tiết tủ quần áo 3 cánh mởMẫu bản vẽ chi tiết tủ quần áo 3 cánh mở

Tủ 2-3 cánh tiết kiệm diện tích cho phòng nhỏ

Phòng 15-18m²: Tủ 3 cánh (rộng 150-180cm)

Thiết kế 3 khoang chính kết hợp ngăn kéo dưới. Tại Đại Phát, mẫu tủ 3 cánh gỗ công nghiệp melamine được gia đình trẻ ưa chuộng nhờ giá tham khảo từ 4-6 triệu đồng.

Mẫu bản vẽ kỹ thuật tủ quần áo nhỏMẫu bản vẽ kỹ thuật tủ quần áo nhỏ

Bản vẽ tủ 3 cánh với ngăn chia hợp lý

Phòng >20m²: Tủ 4-5 cánh hoặc tủ chữ L

Tủ 4 cánh (rộng 200-240cm) hoặc tủ góc chữ L tận dụng tối đa không gian lưu trữ. Phù hợp gia đình 4-5 người, có thể tích hợp ngăn giày dép và phụ kiện.

Mẫu bản vẽ tủ quần áo 2 cánh trượtMẫu bản vẽ tủ quần áo 2 cánh trượt

Tham khảo: Báo Giá Tủ Quần Áo Nhôm Vân Gỗ 2026: Phân Tích Chi Tiết & Lựa Chọn Thông Minh

Tủ cánh lùa tiết kiệm không gian mở cánh

So sánh loại cửa: Mở vs Lùa

Tiêu chí Cửa mở Cửa lùa (trượt)
Diện tích cần Cần 60-70cm phía trước Không cần khoảng trống
Độ bền ray Không có ray Ray nhôm hoặc thép, cần bảo dưỡng
Giá tham khảo Thấp hơn 15-20% Cao hơn do phụ kiện ray
Phù hợp Phòng rộng >15m² Phòng nhỏ, cần tối ưu diện tích

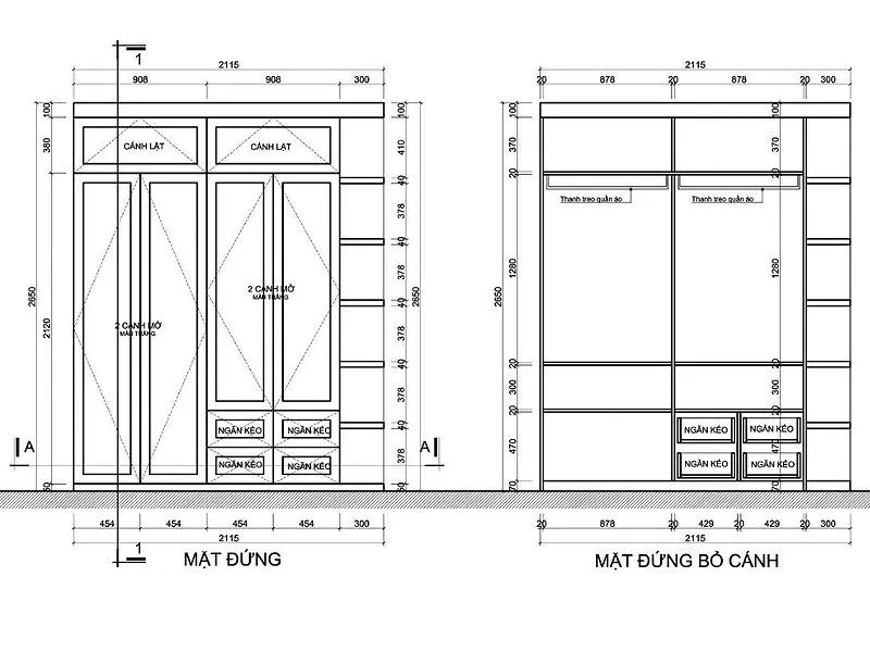
Mẫu bản vẽ kỹ thuật tủ quần áo 4 cánh mởMẫu bản vẽ kỹ thuật tủ quần áo 4 cánh mở

Tủ 4 cánh mở cho phòng ngủ master

Chất liệu gỗ: Chọn theo ngân sách

Gỗ tự nhiên (sồi, xoan đào)

  • Ưu điểm: Bền 15-20 năm, vân gỗ tự nhiên đẹp
  • Nhược điểm: Giá cao (từ 12 triệu/tủ 3 cánh), cần bảo dưỡng định kỳ
  • Phù hợp: Gia đình ưu tiên chất lượng lâu dài

Mẫu bản vẽ tủ quần áo 3 cánhMẫu bản vẽ tủ quần áo 3 cánh

Tủ gỗ sồi tự nhiên với vân gỗ rõ nét

Gỗ công nghiệp (MDF phủ melamine, MFC)

  • Ưu điểm: Giá tham khảo 3-7 triệu, chống ẩm tốt, đa dạng màu sắc
  • Nhược điểm: Độ bền 7-10 năm, không thể sửa chữa khi hư hỏng nặng
  • Phù hợp: Căn hộ chung cư, gia đình trẻ

Mẫu bản vẽ thiết kế tủ quần áo 2 cánhMẫu bản vẽ thiết kế tủ quần áo 2 cánh

Tủ MFC phủ melamine chống ẩm hiệu quả

Bố trí ngăn chia thông minh

Theo kinh nghiệm tại xưởng Đại Phát:

  • Ngăn treo áo dài: Chiều cao 100-120cm cho áo vest, đầm dạ hội
  • Ngăn áo ngắn: 80-90cm cho áo sơ mi, áo thun
  • Ngăn kéo: 15-20cm mỗi ngăn, đặt ở tầng giữa (cao 80-120cm từ sàn) để lấy đồ dễ dàng
  • Kệ giày: Tầng dưới cùng, cao 20-25cm/kệ

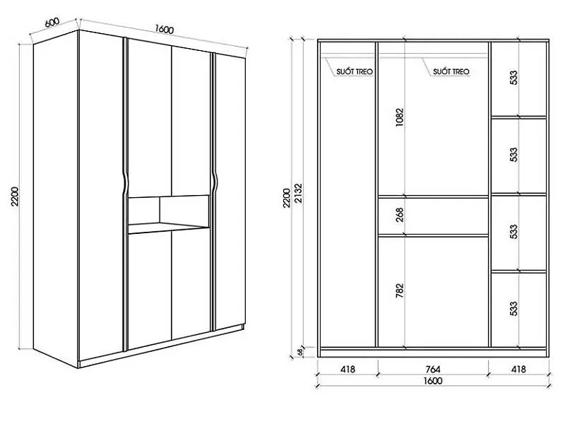
Mẫu bản vẽ kỹ thuật tủ quần áo 5 cánh rộng rãiMẫu bản vẽ kỹ thuật tủ quần áo 5 cánh rộng rãi

Tủ 5 cánh với ngăn chia chi tiết cho gia đình đông người

Tủ kịch trần: Tận dụng chiều cao phòng

Tủ kịch trần (cao 240-260cm) phù hợp trần nhà >2.6m. Lợi ích:

  • Tăng 30-40% không gian lưu trữ so với tủ thường (cao 200cm)
  • Hạn chế bụi bám trên nóc tủ
  • Tạo cảm giác phòng cao, rộng hơn

Mẫu bản vẽ kỹ thuật tủ quần áo kịch trầnMẫu bản vẽ kỹ thuật tủ quần áo kịch trần

Tủ kịch trần tối ưu chiều cao phòng

Tủ góc chữ L: Giải pháp cho góc chết

Tủ chữ L tận dụng góc phòng, thường kết hợp với bàn trang điểm hoặc kệ tivi. Kích thước chuẩn: cạnh dài 180-200cm, cạnh ngắn 100-120cm.

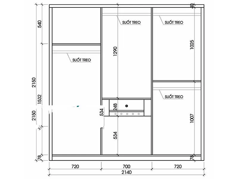
Mẫu bản vẽ kỹ thuật tủ quần áo góc chữ LMẫu bản vẽ kỹ thuật tủ quần áo góc chữ L

Tủ chữ L biến góc chết thành không gian hữu ích

Checklist chọn bản vẽ tủ quần áo

Trước khi đặt đóng tủ, kiểm tra:

  • ☑ Kích thước tủ phù hợp diện tích phòng (chừa lối đi 60-70cm)
  • ☑ Chiều cao ngăn treo áo đủ cho quần áo dài nhất
  • ☑ Số lượng ngăn kéo đáp ứng nhu cầu lưu trữ
  • ☑ Chất liệu gỗ phù hợp ngân sách và độ bền mong muốn
  • ☑ Loại cửa (mở/lùa) phù hợp không gian

Mẫu bản vẽ kỹ thuật tủ quần áo 2 cánhMẫu bản vẽ kỹ thuật tủ quần áo 2 cánh

Tham khảo: Mẫu Tủ Quần Áo 4 Cánh Đẹp Hiện Đại 2026 — Giải Pháp Lưu Trữ Cho Phòng Ngủ Rộng

Bản vẽ chi tiết giúp kiểm soát từng bước thi công

Mẫu bản vẽ thiết kế tủ quần áo 3 cánhMẫu bản vẽ thiết kế tủ quần áo 3 cánh

Tủ 3 cánh với thiết kế cân đối

Mẫu bản vẽ thiết kế tủ quần áo 4 cánhMẫu bản vẽ thiết kế tủ quần áo 4 cánh

Tủ 4 cánh tích hợp ngăn kéo và kệ mở

Mẫu bản vẽ kỹ thuật tủ quần áo cửa lùaMẫu bản vẽ kỹ thuật tủ quần áo cửa lùa

Tủ cửa lùa 2 cánh tiết kiệm không gian

Tủ quần áo làm từ gỗ xoan đào với thiết kế cánh lùa tiện lợi, dễ sử dụngTủ quần áo làm từ gỗ xoan đào với thiết kế cánh lùa tiện lợi, dễ sử dụng

Tủ gỗ xoan đào cánh lùa cho phòng ngủ hiện đại

Tủ quần áo gỗ sồi 6 cánh mở rộng rãi dành cho gia đình đông ngườiTủ quần áo gỗ sồi 6 cánh mở rộng rãi dành cho gia đình đông người

Tủ gỗ sồi 6 cánh cho gia đình đông thành viên

Tủ quần áo 5 cánh mở làm bằng gỗ công nghiệp với màu sắc tươi tắn mà mát mẻTủ quần áo 5 cánh mở làm bằng gỗ công nghiệp với màu sắc tươi tắn mà mát mẻ

Tủ MFC 5 cánh màu sáng tạo cảm giác thoáng đãng

Tủ quần áo cần được lựa chọn phù hợp với diện tích căn phòngTủ quần áo cần được lựa chọn phù hợp với diện tích căn phòng

Chọn kích thước tủ phù hợp với diện tích phòng

Mẫu tủ quần áo được thiết kế theo phong cách hiện đại và trẻ trungMẫu tủ quần áo được thiết kế theo phong cách hiện đại và trẻ trung

Tủ phong cách hiện đại với đường nét tối giản

Tủ quần áo làm từ gỗ tự nhiên chắc chắn, có độ bền cao và đẹp mắtTủ quần áo làm từ gỗ tự nhiên chắc chắn, có độ bền cao và đẹp mắt

Gỗ tự nhiên bền đẹp theo thời gian

Tủ quần áo 2 cánh lùa có không gian lưu trữ phù hợp với cặp vợ chồng mới cướiTủ quần áo 2 cánh lùa có không gian lưu trữ phù hợp với cặp vợ chồng mới cưới

Tủ 2 cánh lùa gọn gàng cho cặp đôi

Tủ quần áo gỗ tự nhiên kết hợp kính đẹp và sang trọng được Kwood Việt Nam thi côngTủ quần áo gỗ tự nhiên kết hợp kính đẹp và sang trọng được Kwood Việt Nam thi công

Tủ gỗ tự nhiên kết hợp cánh kính tăng tính thẩm mỹ

Tủ quần áo gỗ công nghiệp kết hợp cánh kính đèn LED được các thợ lành nghề tại Kwood Việt Nam hoàn thiện tỉ mỉTủ quần áo gỗ công nghiệp kết hợp cánh kính đèn LED được các thợ lành nghề tại Kwood Việt Nam hoàn thiện tỉ mỉ

Tủ MFC kết hợp kính và đèn LED hiện đại

Với bản vẽ tủ quần áo chi tiết và hướng dẫn chọn kích thước chuẩn, bạn có thể tự tin đặt đóng tủ phù hợp với không gian phòng ngủ. Tại Đại Phát, chúng tôi tư vấn miễn phí bản vẽ 3D và báo giá tham khảo trước khi thi công.

Ngày cập nhật 13 Tháng 3, 2026 by Trần Nhân

Trần Nhân

Trần Nhân là chuyên gia thiết kế nội thất tại noithatdaiphat.net với hơn 12 năm kinh nghiệm thực tiễn trong lĩnh vực thiết kế và thi công không gian sống cao cấp, bao gồm nhà ở, căn hộ, biệt thự, văn phòng và không gian thương mại.

Phong Cách Thiết Kế Nội Thất Rustic: Hướng Dẫn Chi Tiết 2026
Cửa Hàng Nội Thất Ở Huế Uy Tín 2026

Để lại một bình luận Hủy

Email của bạn sẽ không được hiển thị công khai. Các trường bắt buộc được đánh dấu *

Bài viết mới

  • Nội Thất Uma Khuyến Mãi – Cơ Hội Sở Hữu Đồ Gỗ Cao Cấp 2026
  • Bàn Ghế Sắt Mỹ Thuật — Giải Pháp Nội Thất Bền Đẹp Cho Mọi Không Gian
  • Baozi Hai Bà Trưng Đặt Bàn — Ẩm Thực Đài Loan Chuẩn Vị Giữa Lòng Sài Gòn
  • Ốp Gạch Tường Phòng Khách: Giải Pháp Nội Thất Đáng Cân Nhắc Năm 2026
  • Chuẩn Hóa Quy Trình Thiết Kế Sản Phẩm Nội Thất Với Inventor Professional

Danh mục

  • bàn ăn
  • Bàn ghế
  • bàn trà
  • ghế ăn
  • ghế sofa
  • giường ngủ
  • gỗ hương
  • gỗ óc
  • gỗ sồi
  • gỗ tự
  • kệ tivi
  • nội thất
  • phòng bếp
  • phòng khách
  • sofa gỗ
  • trang trí
  • tủ bếp
  • tủ giày
  • tủ quần
  • Tư vấn thiết kế

Công Ty Đồ Gỗ Nội Thất Đại Phát

Đồ Gỗ Nội Thất ĐẠI PHÁT chuyên sản xuất kinh doanh Đồ gỗ, Nội thất cao cấp như: Salon, bàn ghế, tủ, giường, chăn drap, gối nệm. Với những sản phẩm có thiết kế từ cổ điển đến hiện đại, đường nét chạm khắc tinh xảo, cầu kì, đảm bảo với khách hàng rằng mỗi sản phẩm đều được chăm chút tỉ mĩ từng công đoạn để tạo nên một sản phẩm hoàn hảo nhất. 

Thông Tin

  • Địa chỉ: 284 Lê Trọng Tấn, P.Tây Thạnh,­ Q. Tân Phú
  • Hotline: 086.860.7173
  • Email: noithatdaiphat2000@gmail.com
  • Website: noithatdaiphat.net

Chính sách

  • Chính sách bảo mật
  • Chính sách đổi trả và hoàn tiền
  • Chính sách bảo hành sản phẩm
  • Chính sách vận chuyển hàng
  • Chính sách kiểm hàng

Fanpgae Nội Thất Đại Phát

COPPYRIGHT 2025 Noithatdaiphat.net. All right revered. Disign by Nội thất đại phát
  • Trang chủ
  • Giới thiệu
  • Tư vấn thiết kế
  • Bàn ghế
  • Liên hệ

  • Gọi điện

  • Nhắn tin

  • Chat zalo

  • Chat Facebook

Đăng nhập

Quên mật khẩu?